De ruimte achter de voordeur is ruimteklasse 'hal'. Een verkeersruimte boven aan een trap is een 'overloop'. Alle overige verkeersruimten in het model zijn 'gang'.
Let op: een voorzolder ligt weliswaar boven aan een trap, maar is geen verkeersruimte. Dit is een aparte ruimteklasse.

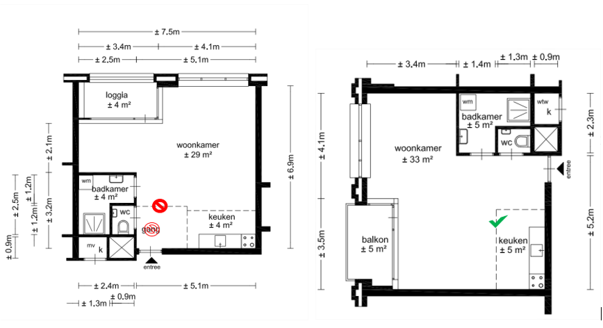
Aangeven van een 'hal'/ 'gang' (bij voornamelijk kleine appartementen).
Wanneer er geen scheiding is van een 'hal'/ 'gang' met een andere ruimte, d.m.v. een wand of deur, dan kan dit worden aangegeven met een virtuele ruimtescheider, volgens standaard regels voor opening tussen ruimten.
Voorwaarden voor het aangeven van een virtuele 'hal':
en
NB: In voorbeeld tekeningen van Woonbedrijf staat 'gang' voor de virtuele ruimte achter de voordeur, maar dit moet 'hal' zijn (want het betreft een verkeersruimte achter de voordeur).

Let op 1: Ruimte achter voordeur is niet smaller dan 1,5m.

Onderstaand model is correct; geen virtuele hal, bij binnenkomst in woon/slaapkamer met open keuken:

Hier voorbeelden die niet correct zijn: in deze gevallen wordt er geen virtuele hal geclassificeerd

Let op 2: Ruimte achter voordeur is niet smaller dan 1,5m en opening is > 50%
De ruimte achter de voordeur is breder dan 1,5m en de opening tussen de twee ruimten is groter dan 50%, dus een ruimte met en gecombineerde woon- en slaapkamer, dus 'woon- en slaapkamer'. Voor opening lees hier.

Let op 3: Ruimte achter voordeur is niet smaller dan 1,5m en geen woon/ slaapkamer.
De ruimte achter de voordeur is breder dan 1,5m en heeft geen daglicht en is om die reden geen vertrek, maar een 'overige ruimte', in dit geval een 'interne berging'. Een overige ruimte telt voor het WWS als 0,75pnt/m², terwijl een 'hal' als verkeersruimte geen punten oplevert.

NB: Ook voor een gang in onderstaand model plaatsen we een virtuele ruimtescheider doordat het vertrek (woonkamer) hier smaller is dan 1,5m. De ruimte achter de hal krijgt dan ruimteklasse 'gang'.
