Kast tussen ruimten met twee deuren (naar iedere ruimte)
- Het kan voorkomen dat er kasten zijn tussen 'keuken' en 'woonkamer'. Dit lijkt een doorloop maar is geen 'gang'.
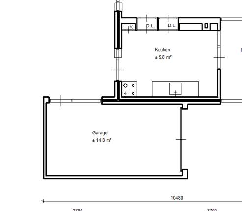
- Vaak staat op de bouw tekening ook D.L. wat betekent; Doorgeef Luik. De juiste Smart Twin klasse is dan ook 'kast' (k) (en geen 'gang')


Buitenkast/ Balkonkast
- Wanneer een buiten bergruimte kleiner is dan 2m² dan is dit een buitenkast (vaak op balkon). De juiste Smart Twin ruimteklasse is 'balkonkast'.
